家を買う・借りる・
不動産会社を探すならマイスマ
マイスマ > 中古一戸建て > 千葉県 > 野田市 > 野田市つつみ野2丁目 戸建て
マイスマ > 不動産会社 > 埼玉県 > 越谷市 > 株式会社中央住宅 ポラスグループ > 野田市つつみ野2丁目 戸建て
マイスマ
中古一戸建て
会員の何がお得なの?

野田市つつみ野2丁目 戸建て

モバイル用QRコード

東武野田線「愛宕」駅 徒歩26分 / 東武野田線「愛宕」駅からバス3分「上岸」バス停下車 徒歩11分

千葉県野田市つつみ野2丁目

1,780万円

物件詳細情報
価格1,780万円その他負担金
交通 (1)東武野田線「愛宕」駅 徒歩26分
(2)東武野田線「愛宕」駅からバス3分「上岸」バス停下車 徒歩11分
所在地千葉県野田市つつみ野2丁目
設備物件の周辺地図を表示しています。建物の位置正確でない場合がございます。交通4:東武野田線「野田市」駅バス17分「中野台」停徒歩11分
周辺環境野田市立清水台小学校 距離:1300m/野田市立第一中学校 距離:2200m
備考都市計画:市街化区域  川尻工務店施工の贅沢な平屋物件本棚やクローゼットなど収納が豊富
前面道路6mで駐車もしやすい区画整理地
来客用としても重宝する駐車スペース2台分
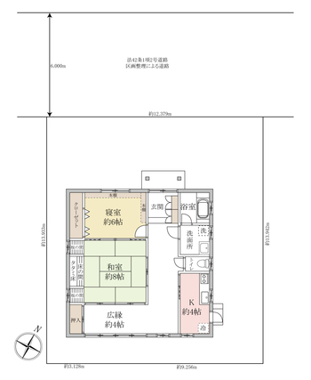
間取り2LDK建物面積67.07m2
土地面積172.66m2私道負担私道負担:無 セットバック:不要
築年月2007年2月建物構造木造1階建
駐車場接道状況一方 北側 間口12.0m 公道 幅6.0m
土地権利所有権地目宅地
借地権の詳細
用途地域第一種低層住居専用地域採光南東
建ぺい率50%容積率100%
現況空家引渡時期
取引形態専任法的規制など
情報更新日2026年1月30日次回更新日2026年2月11日
取引条件有効期限
売主事業主
お問合せ先

株式会社中央住宅 ポラスグループ【宅建業 国土交通大臣(13)第2401号】

〒343-0845 埼玉県越谷市南越谷1-21-2

TEL:048-945-3935

※お問い合わせの際は「マイスマ」を見たとお伝えになるとスムーズです

営業時間:10:00~19:00/定休日:水曜日

条件の近い物件を検索

周辺の物件を地図から探す

テーマ別で物件を探す(野田市)

周辺の不動産会社

Webサイトのプレビュー

(株)グッドリビング

〒278-0026 千葉県野田市花井1丁目19-21
Webサイトのプレビュー

有限会社 オカダランド

〒278-0051 千葉県野田市七光台96―1
Webサイトのプレビュー

清水住宅 株式会社

〒278-0043 千葉県野田市清水408

物件の周辺情報

野田市周辺の施設

Yahoo!

この会社の他の物件

草加市西町 中古戸建

草加市西町 中古戸建
中古一戸建

所在地

埼玉県草加市

価格

3,780万円

最寄り駅

東武伊勢崎・大師線「…

間取り

4LDK

足立区古千谷本町4丁目…

足立区古千谷本町4丁目 戸建
中古一戸建

所在地

東京都足立区

価格

6,180万円

最寄り駅

日暮里・舎人ライナー…

間取り

4LDK

さいたま市南区内谷3丁…

さいたま市南区内谷3丁目 戸建
中古一戸建

所在地

埼玉県さいたま市南区

価格

5,750万円

最寄り駅

埼京線「武蔵浦和」駅 …

間取り

3LDK

富士見市渡戸3丁目

富士見市渡戸3丁目
中古一戸建

所在地

埼玉県富士見市

価格

790万円

最寄り駅

東武東上線「ふじみ野…

間取り

3LDK

ページの先頭へ