家を買う・借りる・
不動産会社を探すならマイスマ
マイスマ > 中古一戸建て > 千葉県 > 松戸市 > 松戸市上本郷戸建
マイスマ > 不動産会社 > 埼玉県 > 越谷市 > 株式会社中央住宅 ポラスグループ > 松戸市上本郷戸建
マイスマ
中古一戸建て
会員の何がお得なの?

松戸市上本郷戸建

モバイル用QRコード

千代田・常磐緩行線「北松戸」駅 徒歩13分 / 新京成電鉄「上本郷」駅 徒歩11分

千葉県松戸市上本郷

5,790万円

物件詳細情報
価格5,790万円その他負担金
交通 (1)千代田・常磐緩行線「北松戸」駅 徒歩13分
(2)新京成電鉄「上本郷」駅 徒歩11分
所在地千葉県松戸市上本郷
設備物件の周辺地図を表示しています。建物の位置正確でない場合がございます。・築後未入居
周辺環境寒風台小学校 距離:880m/第六中学校 距離:1260m
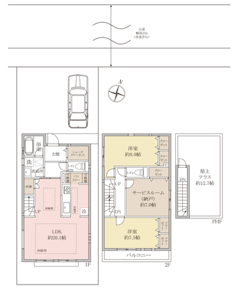
備考都市計画:市街化区域  2024年6月築、2SLDK屋上テラス、上質なリゾート感あふれるデザインのアイム・ユニバース施工。是非一度ご見学ください。
間取り2SLDK建物面積105.99m2
土地面積120m2私道負担私道負担:無 セットバック:不要
築年月2024年6月建物構造木造2階建
駐車場駐車場:有り/空有接道状況一方 北側 間口6.6m 公道 幅22.0m
土地権利所有権地目宅地
借地権の詳細
用途地域第一種住居地域採光
建ぺい率60%容積率200%
現況空家引渡時期
取引形態専任法的規制など
情報更新日2026年1月30日次回更新日2026年2月11日
取引条件有効期限
売主事業主
お問合せ先

株式会社中央住宅 ポラスグループ【宅建業 国土交通大臣(13)第2401号】

〒343-0845 埼玉県越谷市南越谷1-21-2

TEL:048-945-3935

※お問い合わせの際は「マイスマ」を見たとお伝えになるとスムーズです

営業時間:10:00~19:00/定休日:水曜日

条件の近い物件を検索

周辺の物件を地図から探す

テーマ別で物件を探す(松戸市)

周辺の不動産会社

店舗の風景

株式会社ハウスワン

〒271-0052 千葉県松戸市新作383-3-102
店舗の風景

WAVE住宅販売株式会社

〒271-0075 千葉県松戸市胡録台345―1WAVEビル1階
Webサイトのプレビュー

株式会社 宅商住販

〒271-0065 千葉県松戸市南花島3―45―8
店舗の風景

(株)チームニッコーク…

〒270-2225 千葉県松戸市東松戸4-9-5

物件の周辺情報

松戸市周辺の施設

Yahoo!

この会社の他の物件

野田市つつみ野2丁目 …

野田市つつみ野2丁目 戸建て
中古一戸建

所在地

千葉県野田市

価格

1,780万円

最寄り駅

東武野田線「愛宕」駅 …

間取り

2LDK

足立区弘道2丁目 中古…

足立区弘道2丁目 中古一戸建て
中古一戸建

所在地

東京都足立区

価格

2,180万円

最寄り駅

つくばエクスプレス「…

間取り

3LDK

流山市東深井 戸建て

流山市東深井 戸建て
中古一戸建

所在地

千葉県流山市

価格

1,980万円

最寄り駅

東武野田線「運河」駅 …

間取り

3LDK

柏市若柴 戸建て

柏市若柴 戸建て
中古一戸建

所在地

千葉県柏市

価格

3,200万円

最寄り駅

つくばエクスプレス「…

間取り

3LDK

ページの先頭へ