家を買う・借りる・
不動産会社を探すならマイスマ
マイスマ > 中古一戸建て > 埼玉県 > 草加市 > 草加市氷川町
マイスマ > 不動産会社 > 埼玉県 > 越谷市 > 株式会社中央住宅 ポラスグループ > 草加市氷川町
マイスマ
中古一戸建て
会員の何がお得なの?

草加市氷川町

モバイル用QRコード

東武伊勢崎・大師線「草加」駅 徒歩13分

埼玉県草加市氷川町

2,780万円

物件詳細情報
価格2,780万円その他負担金
交通 (1)東武伊勢崎・大師線「草加」駅 徒歩13分
所在地埼玉県草加市氷川町
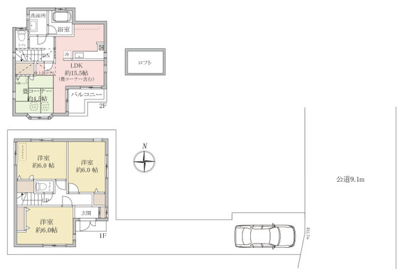
設備プライバシー性の高い住まい約15.5帖・3面採光の2階LDK心落ち着く畳コーナー付きリビングと洋室1部屋にトップライト(天窓)付きリビングにはロフトが付いています全居室6帖以上のスペース南面バルコニー前面道路から奥まっており静かな住環境が魅力の物件です。プライバシー性の高い住まいをお求めの方におすすめ。現地見学や資金計画のご相談も承っておりますので、お気軽にお問い合わせください。上記土地面積の内、約33.86平米(約32%)は路地状部分となります。埼玉県建築基準法施行条例第3条(路地状敷地)の規定が適用されます。 詳しくは担当者へお尋ねください。埼玉県建築基準法施行条例第3条(路地状敷地)の規定により、容積率、建ぺい率は制限されております。物件の周辺地図を表示しています。建物の位置正確でない場合がございます。
周辺環境草加市立氷川小学校 距離:450m/草加中学校 距離:1300m
備考都市計画:市街化区域 ロフト ポラスの仲介車や通行人の目が気になりにくい静かな住環境
東武伊勢崎線「草加」駅徒歩13分
東側前面道路は幅9.1m
玄関から道路まで距離がある為、お子様の飛び出し防止になり安心
間取り3LDK建物面積80.32m2
土地面積105.4m2私道負担私道負担:無 セットバック:不要
築年月2002年2月建物構造木造2階建
駐車場駐車場:有り/空有接道状況一方 東側 間口2.0m 公道 幅9.1m
土地権利所有権地目宅地
借地権の詳細
用途地域第一種中高層住居専用地域採光
建ぺい率40%容積率128%
現況住居中引渡時期2027年4月
取引形態専任法的規制など
情報更新日2026年4月19日次回更新日2026年5月1日
取引条件有効期限
売主事業主
お問合せ先

株式会社中央住宅 ポラスグループ【宅建業 国土交通大臣(13)第2401号】

〒343-0845 埼玉県越谷市南越谷1-21-2

TEL:048-945-3935

※お問い合わせの際は「マイスマ」を見たとお伝えになるとスムーズです

営業時間:10:00~19:00/定休日:水曜日

条件の近い物件を検索

周辺の物件を地図から探す

テーマ別で物件を探す(草加市)

周辺の不動産会社

Webサイトのプレビュー

株式会社なまず屋不動…

〒340-0012 埼玉県草加市神明2丁目4番8号
Webサイトのプレビュー

センチュリー21 オガ…

〒340-0011 埼玉県草加市栄町3丁目4-2
店舗の風景

大恵不動産株式会社

〒340-0034 埼玉県草加市氷川町2150-9
Webサイトのプレビュー

株式会社良質マンショ…

〒340-0013 埼玉県草加市松江1丁目25-13 サンパティー…

物件の周辺情報

草加市周辺の施設

Yahoo!

この会社の他の物件

春日部市備後東2丁目 …

春日部市備後東2丁目 戸建
中古一戸建

所在地

埼玉県春日部市

価格

2,280万円

最寄り駅

東武伊勢崎・大師線「…

間取り

4LDK

練馬区桜台4丁目 戸建

練馬区桜台4丁目 戸建
中古一戸建

所在地

東京都練馬区

価格

9,980万円

最寄り駅

西武池袋線「練馬」駅 …

間取り

4LDK

川口市大字安行北谷

川口市大字安行北谷
中古一戸建

所在地

埼玉県川口市

価格

2,100万円

最寄り駅

東武伊勢崎・大師線「…

間取り

4LDK

野田市みずき4丁目戸建

野田市みずき4丁目戸建
中古一戸建

所在地

千葉県野田市

価格

2,980万円

最寄り駅

東武野田線「梅郷」駅 …

間取り

4LDK

ページの先頭へ